Τοποθεσία :
Πετράλωνα, Αττική , Ελλάδα
Έτος ολοκλήρωσης:
Αναμένεται το 2025
Έκταση:
550 m2
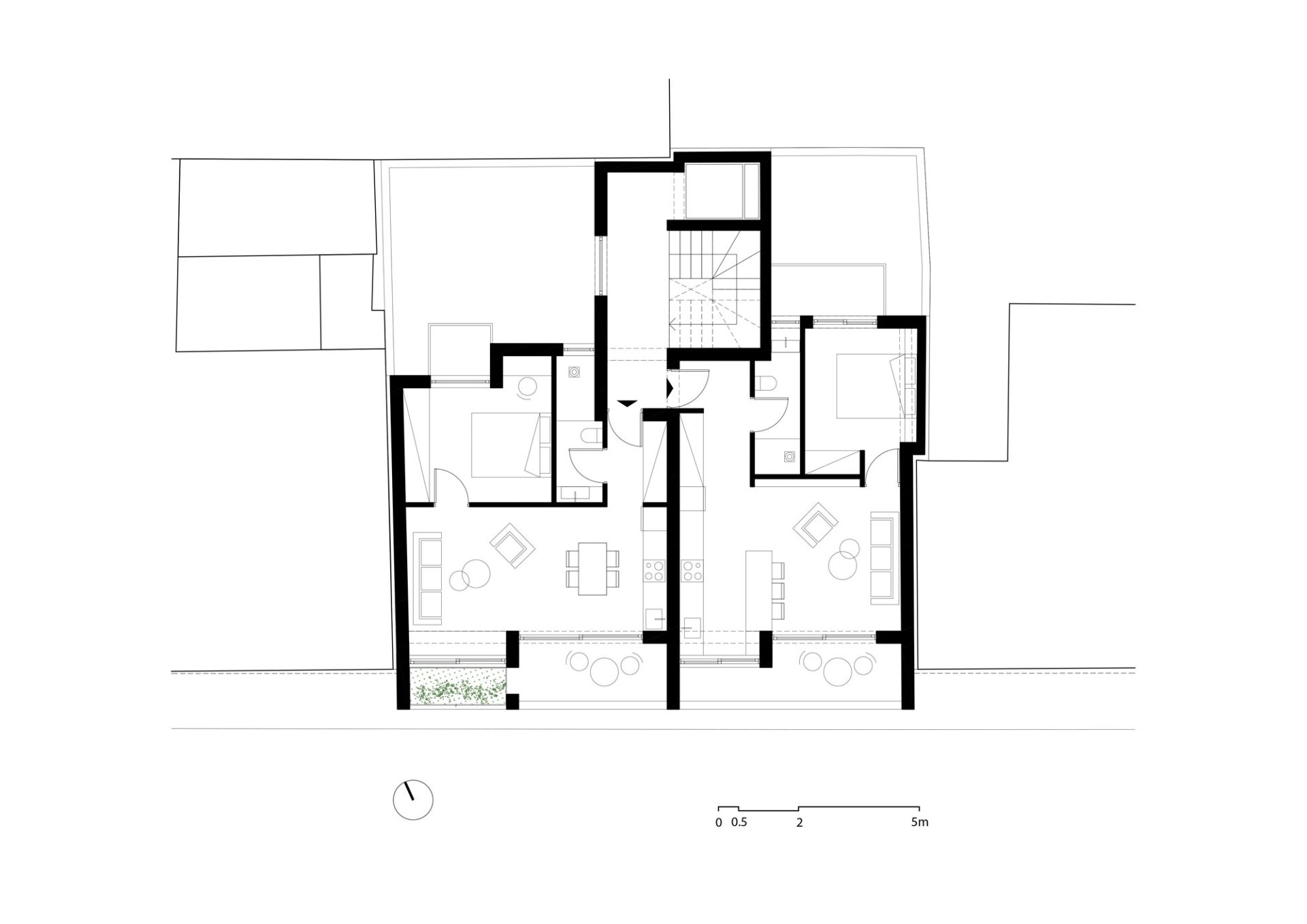
Η πολυκατοικία C3 βρίσκεται στο κέντρο της Αθήνας, στην ιδιαίτερη συνοικία των Πετραλώνων και αφορά σε ένα επταώροφο κτίριο κατοικιών βραχυχρόνιας μίσθωσης. Το κτιριολογικό του πρόγραμμα περιλαμβάνει 8 μικρά διαμερίσματα των 53 τ.μ. και μία μεζονέτα 126 τ.μ. η οποία καταλαμβάνει τα δύο ανώτερα επίπεδα του κτιρίου.
Το έργο έρχεται να ενταχθεί σε μια ζωντανή, εναλλακτική γειτονιά της πόλης με τρόπο που ενισχύει τον πολυποίκιλο χαρακτήρα της, ενώ ταυτόχρονα επιχειρεί να επαναπροσδιορίσει την εμπειρία από τους έντονους ρυθμούς και τον ανομοιόμορφο πυκνό ιστό της σύγχρονης Αθήνας.
Η επανάληψη των τυπικών διαμερισμάτων σε όλο το ύψος της πολυκατοικίας και η ανάγκη να δημιουργηθεί μια ιδιαίτερη όψη για την πόλη, οδήγησε στην αντιμετώπιση της επιδερμίδας του κτιρίου ως ένα πλέγμα με κενά και πλήρη. Το λευκό αυτό πλέγμα, αλλού συμπληρώνεται με κλειστούς εσωστρεφείς χώρους, αλλού υποχωρεί δημιουργώντας επίπεδα και χώρους εκτόνωσης οι οποίοι μέσω μεγάλων ανοιγμάτων επικοινωνούν με τους εξωστρεφείς χώρους διημέρευσης.


Σημαντικό στοιχείο της όψης αποτελούν επίσης οι σταθερές λευκές περσίδες, που επιχειρούν να ρυθμίσουν την ιδιωτικότητα του κάθε διαμερίσματος και προσφέρουν κατάλληλες συνθήκες σκιασμού.
Εσωτερικά η διαμερισμάτωση των κατοικιών επιτυγχάνεται με το σχεδιασμό ενός ξύλινου όγκου που εγκιβωτίζει τους ιδιωτικούς χώρους (υπνοδωμάτιο – λουτρό) αφήνοντας τους χώρους διημέρευσης να οργανωθούν ελεύθερα έξω από αυτό (καθιστικό – κουζίνα).
Στη βελτίωση του μικροκλίματος της κάθε κατοικίας συνεισφέρει η ενσωμάτωση πρασίνου στα μπαλκόνια. Η φύτευση πραγματοποιείται κατά μήκος όλου του εξώστη με αγρωστώδη και αρωματικά φυτά βελτιώνοντας την εικόνα που έχει για την πόλη τόσο ο ένοικος που την παρατηρεί μέσα από την κατοικία του όσο και ο περαστικός που κινείται στη γειτονιά.

























